別荘・保養所・ペンション・民宿・リゾート・温泉・田舎暮らし。九州中古別荘不動産を随時紹介中!
大分 九州 中古 別荘
■物件詳細 メニュートップ会社概要お問合せ  
物件名  大分県玖珠郡九重町田野  別荘 
交 通
 九重インターより車で30分
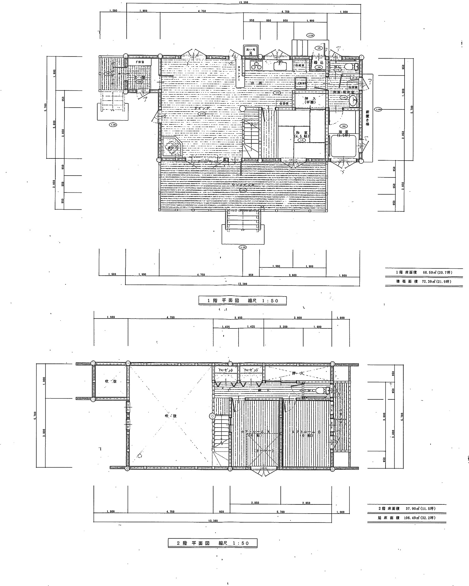
面 積
 土地:9355.76m²(約2830.11坪)
 建物:103.78m²(約31坪)
    + 倉庫9.72u(約2.9坪)
住 所
 大分県玖珠郡九重町田野(地図を見て確かめる)
価 格
 
管理費等
 無
間取
 3LDK
構 造
 木造スレート葺2階建て
築年数
 平成15年11月 
地 目
都市計画
 宅地・区域外
駐車場
 複数台
取引形態
 媒介
備 考

川に面した土地です。
※井戸はありますが、飲用には利用できません。
 
(現在は飲用水持参)

法華院温泉麓事務所を目印に向かってください。
大分県玖珠郡九重町田野1712−661
<物件地図参照>
事前ご連絡頂きまして 立地や道路のご確認をお願いいたします。

お問合せ 別荘に関するお問合せはこちらから。
<こちらをクリック>

※お問合せ時には、物件名をお知らせ下さい。
 



お問合せ 別荘に関するお問合せはこちらから。
<こちらをクリック>

※お問合せ時には、物件名をお知らせ下さい。
<トップページに戻る> ↑はじめに戻る
センチュリ21は方の森不動産ロゴ
 
 福岡県知事(5)14817号 福岡空港 東平尾公園近く!
博多の森不動産
 〒812−0002 福岡市博多区空港前4-18-8